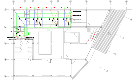
DESCRIPCIÓN
El Proyecto se desarrolla en un terreno de 377.50 m2. La comisaría tiene un nivel, el diseño comprende de un Sistema de albañilería confinada con techo de perfiles de acero.
Se realizó un análisis estructural de la edificación y evaluar su comportamiento sísmico y diseño de elementos estructurales.




